通知公告
血透中心迁移改造项目比选公告
一、项目基本说明
1.项目名称:血透中心迁移改造项目
2.采购方式:院内比选
3.预算金额:施工费不超过61万元;
4.建设地点
北京市朝阳区垂杨柳南街2号
二、技术服务要求
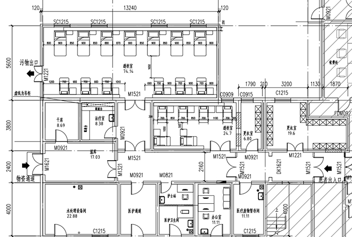
建筑面积275平米,项目主要内容:空间布局调整简单装修,防水处理(水处理间,卫生间);机电安装工程有:氧气,电增容,电器安装(ups),给排水重新布置,治疗带安装,空调和暖气改装等。

1.如果在项目实施时有采购文件中未列出但项目必需的软件、硬件、服务等,成交供应商必须免费提供,采购人将不再支付任何费用。
2.成交供应商提供全部产品必须是原厂原装合法渠道的全新正品,产品质量符合国家相关标准及安全规范,且所有产品需完全满足或优于响应文件所述规格。
投标报价单:
项目名称:血透中心迁移改造项目 | 日期:2023年9月 日 | ||||||
| 序号 | 产品名称 | 品牌 | 单位 | 数量 | 单价(元) | 总价(元) | 备注 |
| 一 | 装修工程 | ||||||
| 1 | |||||||
| 2 | |||||||
| …… | |||||||
| 二 | 机电安装工程 | ||||||
| 1 | |||||||
| 2 | |||||||
| …… | |||||||
| 三 | 装饰工程 | ||||||
| 1 | |||||||
| 2 | |||||||
| …… | |||||||
| 四 | 合计 | ||||||
3.投标报价应为人民币含税全包价,包括项目全部器材及配件购置、系统集成所需线材、随配附件、保险费、货物运输费、安装、调试费、管理费、设备检测费、协助费、培训费、符合国家标准的安装附件、雇员费用、合同实施过程中应预见和不可预见费用等所有费用。供应商的投标报价必须成套和完整,在需求中未列明但属于设备运行的所需配件必须一并投报。如果在安装运行过程中发现有缺项漏项,且又是设备正常运行所必要的,供应商必须无偿提供。
三、商务要求
1、售后和质保
供应商提供两年免费质保。如果原厂提供更长的保修期,以原厂提供的保修期为准。相关软件产品终身免费升级维护。质保期内,所有货物保修服务方式均为供应商上门保修,即由供应商派员到货物使用现场维修,由此产生的一切费用均由供应商承担。在质保期结束后,供应商应提供终身维修服务,发生的相关费用由采购人承担。成交供应商必须向用户提供良好的技术支持。必须要有专门队伍从事此项工作,并提供全天候的热线技术支持服务,必须对用户所反映的任何问题在60分钟之内得到及时响应,设备发生意外通过电话联系无法解决, 4小时内派技术专家赴现场处理,设备出故障不能解决要在48小时之内提供备机备件。
2、工期要求
合同签订后60天内安装调试完毕,检验合格后交付甲方试运行。
3、售后服务有效期自开具发票之日起计算,扣除因修理占用和无零配件待修的时间。在售后服务有效期内,修理两次,仍不能正常使用的产品,由成交供应商负责为采购人免费调换同型号同规格的产品或者按规定退货。换货后的售后服务有效期自换货之日起重新计算。退换货所产生的费用由成交供应商承担。
4、质保期内(2年),如发生成交供应商拒绝承担已明确是因成交供应商责任造成采购人损失的情形,采购人可视采购人实际损失扣除部分或全部质量保证金,成交供应商质保金的交纳不能豁免供应商其他责任和义务,当由于成交供应商原因导致的损失超过质保金金额时,成交供应商需承担超过的损失。
四、申请人的资格要求
1.满足《中华人民共和国政府采购法》第二十二条规定;
2.落实政府采购政策需满足的资格要求:
(1)在中华人民共和国境内注册登记,有生产或供应能力的本国供应商,包括法人、其他组织和个人。
(2)供应商应遵守《中华人民共和国政府采购法》《中华人民共和国政府采购法实施条例》等法律法规,并符合本磋商文件规定的条件。
1)具有独立承担民事责任的能力;
2)具有良好的商业信誉和健全的财务会计制度;
3)具有履行合同所必需的设备和专业技术能力;
4)具有依法缴纳税收和社会保障资金的良好记录;
5)参加此项采购活动前三年内,在经营活动中没有重大违法记录;
6)本项目响应截止期前被“信用中国”网站列入失信被执行人和重大税收违法案件当事人名单的、被“中国政府采购网”网站列入政府采购严重违法失信行为记录名单(处罚期限尚未届满的),不得参与本项目的政府采购活动。
7)法律、行政法规规定的其他条件。
8)供应商按照本公告的要求及规定日期投递比选文件。
3.本项目的特定资格要求:具有建设行政主管部门颁发的电气工程专业承包叁级及以上资质。
五、现场勘查
时间:2022年9月14日14:00时
地点:血液透析中心
六、响应文件提交
截止时间:2023年9月18日10:00(北京时间)
地点:北京市垂杨柳医院行政5楼政后勤保障部
七、比选日期
时间:另行通知
地点:北京市垂杨柳医院门诊5层会议室
八、比选文件包括以下材料(加盖公章):
(1)营业执照复印件,企业资质证书,安全生产许可证(或投标单位安全承诺书)、法人身份证复印件,受委托人人身份证复印件、授权委托书。
(2)投标报价(按本文件《投标报价单》格式)
(3)项目设计成果及实施方案、人力投入方案
(4)施工工期
(5)售后服务方案(保修承诺至少两年)
(6)既往业绩
九、联系方式:67757731
- 标签:
- 后勤保障部
下一篇: 电热针治疗仪比选结果公告








京公网安备11010502033717号